ZCZG\ZCZH系列高溫電磁閥是先導直動型的電磁閥,其通用介質范圍較廣,可分別使用于水、輕油、重油、非腐蝕性氣體及蒸汽等流體,如電站抽氣管道疏水系統和蒸發器的排氣系統中,主要是對管道中的介質進行雙位自動調節和遠程控制。
電磁鐵通電后,連桿被提升,隨著轉軸開始轉動,這運動作用于導閥而開主閥; 斷電后,在銜鐵自重及返回彈簧作用下,關上導閥,導閥關閉后,靠壓差關閉主閥。


| 介質溫度°C | ZCZG | ≤250 | |||||||||
|---|---|---|---|---|---|---|---|---|---|---|---|
| ZCZH | ≤400 | ||||||||||
| 公稱壓力(MPa) | ZCZG | 2.5 | |||||||||
| ZCZH | 4.0 | ||||||||||
| 工作壓差(MPa) | ZCZG | 0~2.5 | |||||||||
| ZCZH | 0~4.0 | ||||||||||
| 公稱通徑(mm) | 10 | 15 | 20 | 25 | 32 | 40 | 50 | 65 | 80 | 100 | |
| 功耗(VA) | 170VA | 480VA | |||||||||
| 電源電壓 | AC220V,其余規格可作特殊訂貨36V、24V、12V | ||||||||||
| 額定流量(KV) | 按JB/T7352-94規定 | ||||||||||
| 泄漏(ml/min) | 按JB/T7352-94.F規定 | ||||||||||
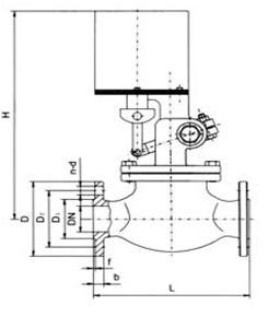
| DN | L | H | D | D1 | D2 | b | f | n-d |
|---|---|---|---|---|---|---|---|---|
| 10 | 160 | 298 | 90 | 60 | 41 | 14 | 2 | 4 -Φ14 |
| 15 | 160 | 298 | 95 | 65 | 45 | 14 | 2 | 4 -Φ14 |
| 20 | 200 | 304 | 105 | 75 | 55 | 16 | 2 | 4 -Φ14 |
| 25 | 200 | 304 | 115 | 85 | 65 | 16 | 2 | 4 -Φ14 |
| 32 | 200 | 314 | 140 | 100 | 78 | 18 | 2 | 4 -Φ14 |
| 40 | 160 | 460 | 150 | 110 | 85 | 18 | 3 | 4 -Φ18 |
| 50 | 300 | 460 | 165 | 125 | 100 | 20 | 3 | 4 -Φ18 |
| 65 | 340 | 433 | 180 | 145 | 120 | 22 | 3 | 8 -Φ18 |
| 80 | 380 | 433 | 200 | 160 | 135 | 22 | 3 | 8 -Φ18 |
| 100 | 430 | 461 | 235 | 190 | 160 | 24 | 3 | 8 -Φ22 |
溫馨提示:
本文中所有文字、數據、圖片均只適用于參考。需要查看更多的ZCZG\ZCZH系列高溫電磁閥性能參數、結構尺寸參數、價格等詳情,或要求印刷樣本,請聯系我們。
主營產品:氣動調節閥 - 電動調節閥 - 自力式調節閥
版版權所有 © 上海大田閥門管道工程有限公司
地址:上海市浦東新區川宏路528號宏圖大樓5樓
