您現在所在位置:大田閥門 >> 襯膠閥門(襯里閥門)
設計與制造:GB122239
結構長度:GB12221、JB1688
法蘭連接尺寸:GB4216、JB78

部件列表:
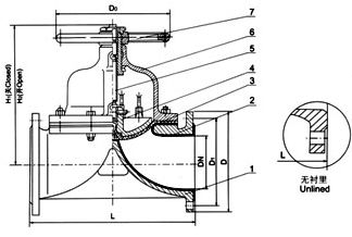
1、閥體 2、閥體襯里 3、隔膜 4、閥瓣 5、閥桿 6、閥蓋 7、手輪
G41W(無襯里)、G41J(襯膠)堰式隔膜閥專用于控制非腐蝕性或一般腐蝕性介質,閥體內腔表面無襯里或覆有可供選擇的各種橡膠,適用于不同工作溫度和流體管路。
適用溫度:≤85℃、≤100℃、 ≤120℃、≤150℃(按照襯里和隔膜材料)
壓力等級:PN0.6、1.0、1.6
閥體:鑄鐵、球墨鑄鐵、碳鋼、不銹鋼
閥蓋:鑄鐵、球墨鑄鐵、碳鋼、不銹鋼
襯里:無襯里、橡膠
隔膜:橡膠
閥瓣:鑄鐵
閥桿:碳鋼、不銹鋼
手輪:鑄鐵
襯里層:電火花檢測
試驗與檢驗按GB/T13297標準
公稱壓力:PN(Mpa)
閥體:PN×1.5
密封:PN×1.1
結構特點:隔膜閥是一種特殊形式的截斷閥;
1、彈性密封的開閉件,確保沒有內漏;
2、流線型的流道,使得壓力損失小;
3、沒有填料函,因此沒有外漏;
4、閥體與蓋被中間隔膜隔開,使得隔膜上方的閥蓋,閥桿等零件不受介質侵蝕;
5、隔膜可更換,維護費用低;
6、襯里材料的多樣性,可適用于各種介質,并具有良好的耐腐蝕性。
| 公稱通徑 DN |
公稱壓力 Mpa |
工作壓力 Mpa |
L (mm) |
D (mm) |
D1 (mm) |
n-φd (mm) |
F (mm) |
H1 (mm) |
H2 (mm) |
D0 (mm) |
質量 |
|---|---|---|---|---|---|---|---|---|---|---|---|
| 15 | 1.5 | 1.0 | 125 | 95 | 65 | 4-14 | 2 | 105 | 116 | 120 | 4.5 |
| 20 | 135 | 105 | 75 | 4-14 | 2 | 117 | 128 | 120 | 4.5 | ||
| 25 | 145 | 115 | 85 | 4-14 | 2 | 121 | 135 | 120 | 5 | ||
| 32 | 160 | 140 | 100 | 4-18 | 2 | 132 | 150 | 120 | 7 | ||
| 40 | 180 | 150 | 110 | 4-18 | 3 | 156 | 176 | 140 | 9 | ||
| 50 | 210 | 165 | 125 | 4-18 | 3 | 169 | 195 | 140 | 12.5 | ||
| 65 | 250 | 185 | 145 | 4-18 | 3 | 200 | 236 | 200 | 19 | ||
| 80 | 300 | 200 | 160 | 4-18 | 3 | 216 | 256 | 200 | 25.5 | ||
| 100 | 350 | 220 | 180 | 8-18 | 3 | 270 | 322 | 280 | 40 | ||
| 125 | 400 | 250 | 210 | 8-18 | 3 | 315 | 380 | 320 | 62 | ||
| 150 | 460 | 285 | 240 | 8-22 | 3 | 378 | 458 | 320 | 80.5 | ||
| 200 | 0.6 | 0.4 | 570 | 340 | 295 | 8-22 | 4 | 518 | 638 | 400 | 146 |
| 250 | 680 | 395 | 350 | 12-22 | 4 | 583 | 720 | 500 | 240 | ||
| 300 | 790 | 445 | 400 | 12-22 | 4 | 698 | 778 | 500 | 334 | ||
| 350 | 900 | 505 | 460 | 16-22 | 4 | 723 | 883 | 500 | 371 | ||
| 400 | 0.25 | 1000 | 565 | 515 | 16-26 | 4 | 868 | 1078 | 640 | 584 |
溫馨提示:
本文中所有文字、數據、圖片均只適用于參考。需要查看更多的G41W(無襯里)、G41J(襯膠)堰式隔膜閥性能參數、結構尺寸參數、價格等詳情,或要求印刷樣本,請聯系我們。
主營產品:氣動調節閥 - 電動調節閥 - 自力式調節閥
版版權所有 © 上海大田閥門管道工程有限公司
地址:上海市浦東新區川宏路528號宏圖大樓5樓
