RRHX明桿彈性座封閘閥除具有彈性座封閘閥的優點之外.并可以較直觀顯閥門開度.啟閉迅速可靠,故常應用于消防及工業系統。一般安裝于距地面較高位置。
當前水力控制閥被廣泛用于石油化工、化工、煤氣、天然氣、液化石油氣、暖通行業以及一般工業中。

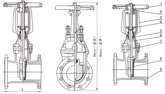
| NO. | 零件名稱 | 材質 |
|---|---|---|
| 1 | 手輪 | 可鍛鑄鐵 |
| 2 | 閥桿螺母 | 銅合金 |
| 3 | 支架 | 碳鑄鐵、球墨鑄鐵、鑄鋼 |
| 4 | 壓蓋 | 球墨鑄鐵、鑄鋼 |
| 5 | 密封圈 | 丁腈橡膠、三元乙丙 |
| 6 | 閥桿 | 不銹鋼 |
| 7 | 中口墊 | 丁腈橡膠、三元乙丙 |
| 8 | 閘閥 | 球墨鑄鐵+三元乙丙或丁腈橡膠 |
| 9 | 閥體 | 灰鑄鐵、球墨鑄鐵、鑄鋼 |
公稱壓力:1.0~2.5MPa
公稱通徑:50~400mm
工作溫度:0~120℃
適用介質:水、油、氣等
法蘭標準:GB/T17241.6GB9113
試驗標準:GB13927API598
| DN | 50 | 65 | 80 | 100 | 125 | 150 | 200 | 250 | 300 | 350 | 400 | 450 | 500 | 600 |
|---|---|---|---|---|---|---|---|---|---|---|---|---|---|---|
| L | 178 | 190 | 203 | 229 | 254 | 267 | 292 | 330 | 356 | 381 | 406 | 432 | 457 | 508 |
| Hmin(全關) | 313 | 332 | 372 | 424 | 497 | 562 | 680 | 837 | 948 | 1010 | 1220 | 1280 | 1480 | 1665 |
| Hmax(全開) | 355 | 375 | 415 | 476 | 540 | 600 | 720 | 875 | 990 | 1050 | 1245 | 1310 | 1560 | 1750 |
溫馨提示:
本文中所有文字、數據、圖片均只適用于參考。需要查看更多的RRHX明桿彈性座封閘閥 性能參數、結構尺寸參數、價格等詳情,或要求印刷樣本,請聯系我們。
主營產品:氣動調節閥 - 電動調節閥 - 自力式調節閥
版版權所有 © 上海大田閥門管道工程有限公司
地址:上海市浦東新區川宏路528號宏圖大樓5樓
